Дома под ключ в Твери
Отзывы из Яндекс Карт
4.9
121 отзывов
Дополнительные услуги 88%
2 154 оценок
Комплектации 89%
1 535 оценок
Планировки 90%
2 484 оценок
Проекты 93%
2 231 оценок
С
Мирослава05/20/2025 г.
Я в восторге от того, как бережно и с какой любовью собирали наш деревянный дом, видно, что мастера вкладывают душу в свое дело и стремятся к идеальному результату для заказчика.
Отзывы из Google Карт
4.8
73 отзывов
Дополнительные услуги 88%
2 154 оценок
Комплектации 89%
1 535 оценок
Планировки 90%
2 484 оценок
Проекты 93%
2 231 оценок
С
Филипп03/26/2025 г.
Строительство деревянного дома — это серьезный шаг, и я рад, что доверил его компании Брус дома! От заявки до сдачи объекта прошло всего три месяца, но за это время я получил полноценный дом под ключ, готовый к проживанию! Особенно хочу отметить культуру производства — на участке всегда был порядок, материалы аккуратно складированы, а мусор убирался по ходу работы! Результатом более чем доволен, дом получился именно таким, каким я его представлял!
Отзывы из 2гис
4.9
42 отзывов
Дополнительные услуги 88%
2 154 оценок
Комплектации 89%
1 535 оценок
Планировки 90%
2 484 оценок
Проекты 93%
2 231 оценок
С
Грета Демидова06/01/2025 г.
От начала и до конца все было организовано просто безупречно. Никаких скрытых платежей, все прозрачно и честно. Смету не превысили, объект сдали даже чуть раньше заявленного срока. Для меня это показатели настоящей профессиональности.


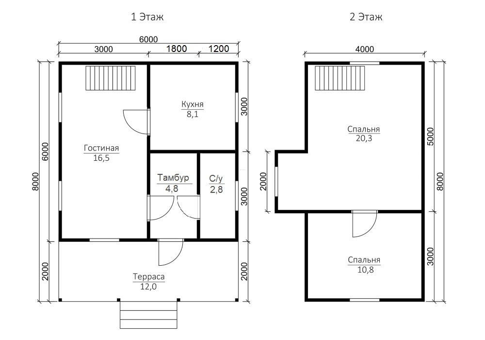
Проект №97 Каркасный дом с детской и террасой 8х6

каркас из строганой доски
Создайте свой план для этого проекта
и отправьте его нам на расчет в один клик.
Каркасный дом (150 мм) 6х8 Толщина утепления 150 мм 1952400 Заказать
Каркасный дом (200 мм) 6х8 Толщина утепления 200 мм 2122400 Заказать

Для того, чтобы адаптировать готовые проекты и получить индивидуальную планировку, пользуйтесь планировщиком.

При помощи планировщика можно создавать планы, схемы, эскизы, чертежи дома с мансардой, эркером, с одной, двумя или тремя спальнями. В конечном итоге получится современный проект, который на 100% отвечает вашим требованиям.

Вы имеете возможность подобрать тип кровли: двускатная, четырехскатная и вальмовая. Двухскатная крыша считается наиболее востребованной в не очень больших постройках.

Популярные размеры домов и коттеджей сегодня: мини - до 50 м2 (как правило, 1 этажные дома); компактные - от 70 квадратных метров до 100 квадратов (обычно 2х этажные); большие - начиная от 150 м2 и больше.

Можем предложить дуплексы - большие современные каркасные постройки с двумя входами, рассчитанные на проживание сразу 2-х семей. Такие дома предполагаются для нескольких хозяев и разделены на две половины, каждая половина с отдельным входом.


Наши работы

Перейти в галерею


Комплектация

Площадь застройки: 48 м2
Длина: 8 м
Ширина: 6 м
Общая площадь: 65 м2
Исполнение Под ключ (с отделкой)
Фундамент Свайно-винтовой или ж/б сваи (рассчитываются отдельно).
Гидроизоляция фундамента Рубероид в два слоя.
Основание (обвязка) Из обрезного бруса 150х150 мм. 150х200 мм. согласно выбранной толщине утепления. Торцевая доска строганая 45х145/45х195+/-5 мм. согласно выбранной толщине утепления. Обработка антисептиком.
Цокольное перекрытие Строганая доска камерной сушки 45х145/45х195+/-5 мм. с шагом 590 мм. Обработка антисептиком.
Пол черновой Обрезная доска камерной сушки 20х100 мм.
Влаго-ветрозащита чернового пола Мембрана Ондутис А100.
Внешние стены Стойки каркаса из строганой доски камерной сушки 45х145/45х195+/-5 мм. с шагом 590 мм. Верхняя двойная и нижняя обвязки из строганой доски камерной сушки 45х145/45х195+/-5 мм. Разгрузочный ригель из строганой доски 45х145+/-5 мм. Укосины из строганой доски 20х95 мм.
Перегородки Стойки каркаса из строганой доски камерной сушки 45х95+/-5 мм. с шагом 590 мм. Верхняя двойная и нижняя обвязки из строганой доски 45х95+/-5 мм. Разгрузочный ригель из строганой доски камерной сушки 45х145+/-5 мм. Укосины из строганой доски камерной сушки 20х95 мм.
Сборка каркаса На гвозди.
Высота от пола до потолка Дом одноэтажный: 2,5 м. Дом с мансардой: 1-ый этаж- 2,5 м.
2-ой этаж (мансарда)- 2,3 м.
Дом в полтора и два этажа:
1-ый этаж 2,5 м.
2-ой этаж 2,4 м. в полутораэтажном доме
2,5 м. в двухэтажном доме.
Внешняя отделка стен Имитация бруса камерной сушки, сорт АВ, толщиной 17 мм. Монтаж через строганый брусок камерной сушки 45х45+/-5 мм. (вентилируемый фасад). Влаго-ветрозащитная мембрана- Ондутис А100.
Внутренняя отделка стен, перегородок Евровагонка камерной сушки, сорт АВ, толщиной 12,5 мм. по строганой рейке 20х40+/-5 мм. либо ГКЛ 12,5 мм.
Отделка потолка Евровагонка камерной сушки, сорт АВ толщиной, 12,5 мм. по строганой рейке 20х40+/-5 мм. либо ГКЛ 12,5 мм.
Пол чистовой Шпунтованная доска камерной сушки толщиной 35-36 мм. сорт АВ. по строганой рейке 20х40+/-5 мм. либо шпунтованная ДСП 16 мм. по разряженной обрешётке из строганой доски камерной сушки 20х95+/-5 мм.
Утепление (пол, потолок) Минеральная вата Knauf 150/200 мм. согласно выбранной толщине утепления.
Утепление стен Плитный утеплитель Rockwool, толщиной 150/200 мм. согласно выбранной толщине утепления.
Звукоизоляция перегородок Плитный утеплитель Rockwool, толщиной 100 мм.
Пароизоляция (стены, перегородки, пол, потолок) Плёнка Ондутис R70. Дополнительная герметизация нахлёстов/примыканий пароизоляционной плёнки клейкой лентой Delta.
Окна Двухкамерные стеклопакеты ПВХ белого цвета, профиль 60 мм. В комплекте: отливы, подоконники, москитные сетки.
Двери Входная- металлическая, утеплённая (Россия). Межкомнатные- филёнчатые.
Наличники на окна и двери Наличник деревянный, строганый, камерной сушки 70-90 мм. с двух сторон.
Лестница (при наличии второго этажа) Деревянная, одно или двухмаршевая. Перила- заводские резные, балясины- заводские точеные, устанавливаются стартовые точёные столбы. Ступени 40х200 мм. Тетива лестницы- 90х140 мм.
Крыша Двускатная, ломаная или вальмовая в соответствии с проектом.
Стропильная система Выполнена из строганой доски камерной сушки 45х145/45х195+/-5 мм. Шаг установки стропил 590 мм.
Обрешётка Выполняется из строганой доски камерной сушки толщиной 20х95+/-5 мм. Шаг крепления обрешетки 350 мм. Контробрешётка выполняется из строганого бруска камерной сушки 45х45+/-5 мм. Крепится по стропилам (вентиляционный зазор).
Подкровельная мембрана Ондутис А100
Кровельное покрытие (на выбор) Металлочерепица 0,45 мм. Цвет на выбор.
Фронтоны (при наличии) Каркас из строганой доски камерной сушки 45х145/45х195+/-5 мм. Обшиваются имитацией бруса камерной сушки, сорт АВ, толщиной 17 мм. Монтаж через строганый брусок камерной сушки 45х45+/-5 мм. (вентилируемый фасад). Влаго-ветрозащитная мембрана- Ондутис А100. Монтаж вентиляционных решёток.
Свесы крыши Ширина 400 мм. Подшиваются вагонкой камерной сушки, сорт АВ.
Терраса/балкон (при наличии) Устанавливаются опорные столбы из строганного бруса камерной сушки 140х140 мм.
Отделка потолка террасы/балкона Евровагонка камерной сушки толщиной 12,5 мм. сорт АВ.
Пол террасы/балкона Шпунтованная доска камерной сушки толщиной 35-36 мм. сорт АВ.
Ограждение террасы/балкона Перила- строганая доска. Балясины- точеные, фигурные. Либо ограждение в скандинавском стиле. Устанавливаются ступени у входа.
Допуск на геометрические параметры Составляет +/- 50 мм по длине с каждой стороны.
Допускается стыковка имитации бруса, вагонки и половой доски По всему периметру стен дома (если ширина и длина дома более 6,0 метров). Вагонки и доски пола в каждой отдельной комнате.
Допуски по имитации бруса, вагонке, доске +/- 5 мм.
В стоимость включена Доставка комплекта материала в радиусе 500 км. от г. Пестова Новгородской области и сборка дома на вашем участке.
Гарантия 5 лет.
Бытовка строительная 2,0х3,0 м. каркасно-щитовая. Стоимость 23000 руб. Остаётся на участке Заказчика.
Туалет 1,0х1,0 м. каркасно-щитовой. Стоимость 12000 руб. Остаётся на участке Заказчика.
Генератор Стоимость аренды на весь срок строительства 15000 руб. ГСМ за счёт Заказчика.

Строительство домов осуществляется в 2-х вариантах: под ключ и под усадку, когда сруб отстаивается определенное время.

Зимой специалисты рекомендуют строить дома в морозную погоду, чтобы каркас не отсырел, летом - не в дождливую.

Оптимальными для дачи или сада являются домики на винтовых сваях, у нас можно найти одноэтажные и полуторатажные дома.

Если дом строится для проживания в течение всего года, рекомендуем очень теплые дома на ленточных и плитных фундаментах.

Имеется два вида утепления: 150 мм и 200 мм. Каркасные дома с толщиной стен сто пятьдесят миллиметров получаются дешевле, но менее энергоэффективными.

Дополнительные услуги


Проект 97 дома с большой террасой (6х8 м.) имеет несколько несомненных преимуществ, обеспечивающих растущую популярность среди владельцев дачных участков.

полутораэтажный каркасное здание общей площадью 65 кв.м. имеет тщательно продуманную планировку и удобное расположение помещений, гарантирующих комфортное размещение небольшой семьи для приятного отдыха на природе.

Жилые помещения просторны и достаточно освещены естественным светом сквозь двойные зимние окна, расположившись у которых, можно насладиться пейзажем, вечерней прохладой и пением птиц.

двускатная крыша, крытая ондулином заранее выбранной из предложенных вариантов расцветкой, позволит укрыться в доме от солнца, летнего зноя или неожиданного дождя. 

К прочим преимуществам строения относятся:

Компания «Дача из бруса», успешно реализующая услуги по проектированию и строительству каркасных домов различной величины и сложности исполнения, предлагает самое выгодное решение вопроса дачной застройки в Твери. Наши цены конкурентны, а проекты уникальны.


Популярные проекты


Маленькие дома из бруса Каркасные дома 6х8 Бани из бруса 7х8
хит продаж
Тип:
Общая площадь: 2
1902900
от 1812400
хит продаж
Тип:
Общая площадь: 2
3320400
от 3162400
хит продаж
Тип:
Общая площадь: 2
2879400
от 2742400
Дома из бруса

Заказать или задать вопрос



Заказать или задать вопрос

Заказать звонок