Дома под ключ в Твери
Отзывы из Яндекс Карт
4.9
93 отзывов
Дополнительные услуги 88%
2 154 оценок
Комплектации 89%
1 535 оценок
Планировки 90%
2 484 оценок
Проекты 93%
2 231 оценок
С
Федя Р.07/03/2025 г.
Хочу выразить огромную благодарность всей команде за профессионализм и ответственность, дом из бруса собрали как конструктор, без задержек и проблем, даже соседи удивляются, как быстро все получилось и как красиво смотрится сруб.
Отзывы из Google Карт
4.8
56 отзывов
Дополнительные услуги 88%
2 154 оценок
Комплектации 89%
1 535 оценок
Планировки 90%
2 484 оценок
Проекты 93%
2 231 оценок
С
Владислава03/01/2025 г.
Качество работы на высшем уровне. Дом из профилированного бруса собран идеально, без щелей и зазоров, что гарантирует прекрасный микроклимат внутри помещений. Спасибо всей команде за труд и создание нашего семейного гнездышка.
Отзывы из 2гис
4.9
42 отзывов
Дополнительные услуги 88%
2 154 оценок
Комплектации 89%
1 535 оценок
Планировки 90%
2 484 оценок
Проекты 93%
2 231 оценок
С
Доминика Рудакова05/09/2025 г.
Сроки по договору были обозначены четко, и компания их соблюла практически день в день. Не было никаких задержек из-за материалов или рабочих. Все привозили вовремя, бригада работала стабильно и качественно.


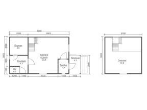
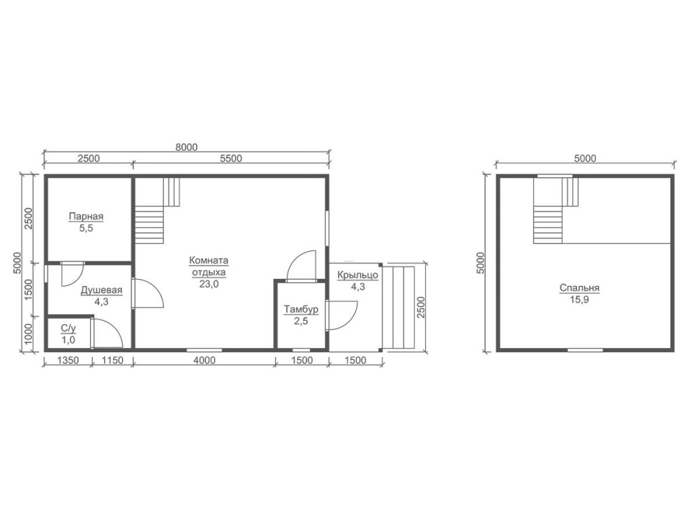
Проект №12 Каркасная баня 5х8

каркас из строганой доски
Создайте свой план для этого проекта
и отправьте его нам на расчет в один клик.
Каркасный дом (150 мм) 5х8 Толщина утепления 150 мм 1962400 Заказать
Каркасный дом (200 мм) 5х8 Толщина утепления 200 мм 2142400 Заказать

Чтобы получить индивидуальную планировку, пользуйтесь планировщиком.

С использованием планировщика вы имеете возможность создать наиболее подходящие эскизы, схемы, планы, чертежи бани с мансардой, эркером, с необходимым числом комнат. Таким образом получится персональный проект с планировкой, стопроцентно отвечающий вашим потребностям.

Вы сможете выбрать подходящий вид крыши: четырехскатная, двускатная и вальмовая. Двухскатную считают самой востребованной в малометражных постройках.

Популярные размеры на сегодняшний день: мини - до 36м2 (в основном, одноэтажные); компактные - от 36 м2 до 70 квадратов (обычно двухэтажные); большие бани - от 70м2 и больше.


Наши работы

Перейти в галерею


Комплектация

Площадь застройки: 43 м2
Длина: 5 м
Ширина: 8 м
Общая площадь: 56 м2
Исполнение Под ключ (с отделкой)
Фундамент Свайно-винтовой или ж/б сваи (рассчитываются отдельно).
Гидроизоляция фундамента Рубероид в два слоя.
Основание (обвязка) Из обрезного бруса 150х150 мм. 150х200 мм. согласно выбранной толщине утепления. Торцевая строганая доска камерной сушки 45х145/45х195+/-5 мм. Обработка антисептиком.
Цокольное перекрытие Строганая доска камерной сушки 45х145/45х195+/-5 мм. с шагом 590 мм. Обработка антисептиком.
Пол черновой Обрезная доска камерной сушки 20х100 мм.
Влаго-ветрозащита чернового пола Мембрана Ондутис А100.
Внешние стены Стойки каркаса из строганой доски камерной сушки 45х145/45х195+/-5 мм. с шагом 590 мм. Верхняя двойная и нижняя обвязки из строганой доски камерной сушки 45х145/45х195+/-5 мм. Разгрузочный ригель из строганой доски 45х145+/-5 мм. Укосины из строганой доски 20х95 мм.
Перегородки Стойки каркаса из строганой доски камерной сушки 45х95+/-5 мм. с шагом 590 мм. Верхняя двойная и нижняя обвязки из строганой доски 45х95+/-5 мм. Разгрузочный ригель из строганой доски камерной сушки 45х145+/-5 мм. Укосины из строганой доски камерной сушки 20х95 мм.
Сборка каркаса На гвозди.
Высота от пола до потолка Баня одноэтажная: 2,5 м. Баня с мансардой: 1-ый этаж- 2,5 м.
2-ой этаж (мансарда)- 2,3 м.
Баня в полтора и два этажа:
1-ый этаж 2,5 м.
2-ой этаж 2,4 м. в полутораэтажной бане.
2,5 м. в двухэтажной бане.
Внешняя отделка стен Имитация бруса камерной сушки, сорт АВ, толщиной 17 мм. Монтаж через строганый брусок камерной сушки 45х45+/-5 мм. (вентилируемый фасад). Влаго-ветрозащитная мембрана- Ондутис А100.
Внутренняя отделка стен, перегородок Евровагонка камерной сушки, сорт АВ, толщиной 12,5 мм. по строганой рейке 20х40+/-5 мм. либо ГКЛ 12,5 мм.
Отделка потолка Евровагонка камерной сушки, сорт АВ, толщиной 12,5 мм. по строганой рейке 20х40+/-5 мм. либо ГКЛ 12,5 мм.
Пол чистовой Шпунтованная доска камерной сушки толщиной 35-36 мм. сорт АВ. по строганой рейке 20х40+/-5 мм. либо шпунтованная ДСП 16 мм. по разряженной обрешётке из строганой доски камерной сушки 20х95+/-5 мм.
Утепление (пол, потолок) Минеральная вата Knauf 150/200 мм. согласно выбранной толщине утепления.
Утепление стен Плитный утеплитель Rockwool, толщиной 150/200 мм. согласно выбранной толщине утепления.
Звукоизоляция перегородок Плитный утеплитель Rockwool, толщиной 100 мм.
Пароизоляция (стены, перегородки, пол, потолок) Плёнка Ондутис R70. Дополнительная герметизация нахлёстов/примыканий пароизоляционной плёнки клейкой лентой Delta.
Отделка парной Отделка осиновой вагонкой камерной сушки, сорт АВ по фольге, через строганую рейку 20х40+/-5 мм. (вентиляционный зазор). Установка пологов из осины.
Окна Двухкамерные стеклопакеты ПВХ белого цвета, профиль 60 мм. В комплекте: отливы, подоконники, москитные сетки.
Двери Входная- металлическая, утеплённая (Россия). Межкомнатные- филёнчатые. В душевую/парную- клиновые (банные).
Наличники на окна и двери Наличник деревянный, строганый, камерной сушки 70-90 мм. с двух сторон.
Лестница (при наличии второго этажа) Деревянная, одно или двухмаршевая. Перила- заводские резные, балясины- заводские точеные, устанавливаются стартовые точёные столбы. Ступени 40х200 мм. Тетива лестницы- 90х140 мм.
Крыша Двускатная, ломаная или вальмовая в соответствии с проектом.
Стропильная система Выполнена из строганой доски камерной сушки 45х145/45х195+/-5 мм. Шаг установки стропил 590 мм.
Обрешётка Выполняется из строганой доски камерной сушки толщиной 20х95+/-5 мм. Шаг крепления обрешетки 350 мм. Контробрешётка выполняется из строганого бруска камерной сушки 45х45+/-5 мм. Крепится по стропилам (вентиляционный зазор).
Подкровельная мембрана Ондутис А100
Кровельное покрытие (на выбор) Металлочерепица 0,45 мм. Цвет на выбор.
Фронтоны (при наличии) Каркас из строганой доски камерной сушки 45х145/45х195+/-5 мм. Обшиваются имитацией бруса камерной сушки, сорт АВ, толщиной 17 мм. Монтаж через строганый брусок камерной сушки 45х45+/-5 мм. (вентилируемый фасад). Влаго-ветрозащитная мембрана- Ондутис А100. Монтаж вентиляционных решёток.
Свесы крыши Ширина 400 мм. Подшиваются вагонкой камерной сушки, сорт АВ.
Терраса/балкон (при наличии) Устанавливаются опорные столбы из строганного бруса камерной сушки 140х140 мм.
Отделка потолка террасы/балкона Евровагонка камерной сушки толщиной 12,5 мм. сорт АВ.
Пол террасы/балкона Шпунтованная доска камерной сушки толщиной 35-36 мм. сорт АВ.
Ограждение террасы/балкона Перила- строганая доска. Балясины- точеные, фигурные. Либо ограждение в скандинавском стиле. Устанавливаются ступени у входа.
Допуск на геометрические параметры Составляет +/- 50 мм по длине с каждой стороны.
Допускается стыковка имитации бруса, вагонки и половой доски По всему периметру стен бани (если ширина и длина бани более 6,0 метров). Вагонки и доски пола в каждой отдельной комнате.
Допуски по имитации бруса, вагонке, доске +/- 5 мм.
В стоимость включена Доставка комплекта материала в радиусе 500 км. от г. Пестова Новгородской области и сборка дома на вашем участке.
Гарантия 5 лет.
Печь По запросу.
Бытовка строительная 2,0х3,0 м. каркасно-щитовая. Стоимость 23000 руб. Остаётся на участке Заказчика.
Туалет 1,0х1,0 м. каркасно-щитовой. Стоимость 12000 руб. Остаётся на участке Заказчика.
Генератор Стоимость аренды на весь срок строительства 15000 руб. ГСМ за счёт Заказчика.

Сооружение каркасных бань может выполняться в двух вариантах: под усадку, когда сруб будет отстаиваться в течение определенного времени и сразу под ключ.

Зимой эксперты рекомендуют строить баню в морозную погоду, чтобы каркас не успел промокнуть, летом - не под дождем.

Подходящими для дачи или сада считаются баньки на винтовых сваях, на нашем сайте имеются одноэтажные и полуторатажные бани.

Существует 2 размера утепления: 150 мм и 200 мм. Каркасные бани с толщиной стен 150 миллиметров получаются дешевле, но не настолько энергоэффективными.

Дополнительные услуги



Популярные проекты


Дома из бруса с мансардой Дома из бруса с верандой Дома из бруса 6х6
Дома из бруса

Заказать или задать вопрос



Заказать или задать вопрос

Заказать звонок